Udaan by Studio AVT

Udaan by Studio AVT

June 8, 2023 | By Pragya Sharma

About the Principal Designer:

Studio AVT is founded by Ar. Ankita Sweety and Ar. Pratyoosh Chandan. While Ankita craves excellence in design & has an eye for detail, Pratyoosh has an innate understanding of the correlation between the built and the unbuilt environment. This makes them an excellent team that focuses on designing meaningful spaces. 

Explore more of their work on: studioavt.com 

Check out the firm's Instagram page here.

Reach out to them here.

Project Fact File:

  • Project Name: Udaan
  • Project Location: New Delhi
  • Year of Completion: 2020
  • Principal Designer: Ar. Ankita Sweety and Ar. Pratyoosh Chandan
  • Photography By: Avneesh Kumar
  • Built-up Area: 595 sq. m/ 6400 sq. ft 

Description as provided by the Designer:

Students spend the majority of their day in a school building during their most crucial developmental years. In this time of pivotal growth, schools must be a space for creative thinking, a source of inspiration, and a starting point for developing a sense of awareness and responsibility. 

A north-western, angular entrance has been aesthetically crafted to add significance without occupying more space or by compromising on natural light and ventilation. The colourful MS louvers boldly emphasise the stairs, thus making a statement. The front facade greets you with bold, exposed bricks- which gives a very natural effect and blends with the vegetation around. Concrete texture finish on a few surfaces readily complements the bricks and gives a warm, vernacular feeling. The MS louvers on the stairs and the window fins, add fresh splashes of colour to the building- thus revealing the function of the building; aesthetically.

The colourful, triangular fins on the windows are inspired from decorative pennant flags- which add cheer and delight. This rightly complements the mood and energy of young minds. A sustainable school helps improve the health and energy of the students and staff, and thus care is taken to use various Energy Efficient Materials, including the interior spaces. The grand fly-ash brick and concrete texture facade welcomes the user, while stepping on to the Kota stone flooring. Minimal glass is used on the facade, so heat trapped inside is reduced. There is a fresh flow of ventilation and abundant natural light through brick jali walls. The window fins help in solar shading as well and ensure abundant sunlight inside the classrooms. 

Doors and furniture are made from particle boards. Johnson's cool roof tiles have been used on the terrace. There are solar panels placed on top of the Sports and Infirmary blocks, which constitute 25% of the energy consumption. Circular niches filled in with glass, are made on the walls along the corridor. These help the classrooms have a connect with the corridor on the enclosed side. 

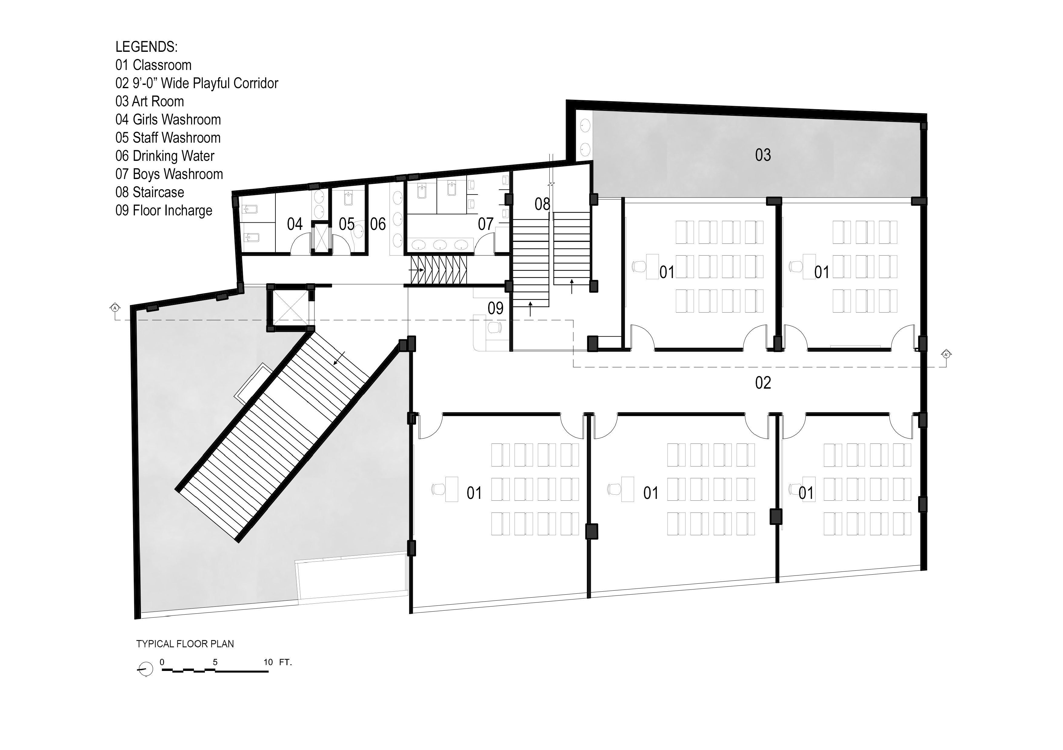
Colour-filled closed circles, alternate with the niches, and provide a decorative elevation. A rough concrete finish makes a subtle backdrop. The corridors are spaces where children readily play around and have the most memories of school. The corridors have been planned in a linear manner connecting all classrooms in one go. It receives natural lighting and ventilation through the brick jali wall at the end. The corridors also make learning fun and interactive, with part blackboard walls- to doodle, draw or write. 

 

Image Gallery

Related Articles

Subscribe To Our Newsletter

Have define news and ideas weekly delivered to your mailbox.

buy furniture online buy furniture online